Lokalplaner
Lokalplanens indhold
Planens status:
11021178
Kortbilag 1 - matrikelkort
Kortbilag 2 - Lokalplankort
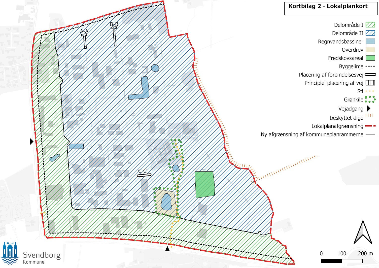
Kortbilag 3 - Lokalplankort